the O talk
圈圈話
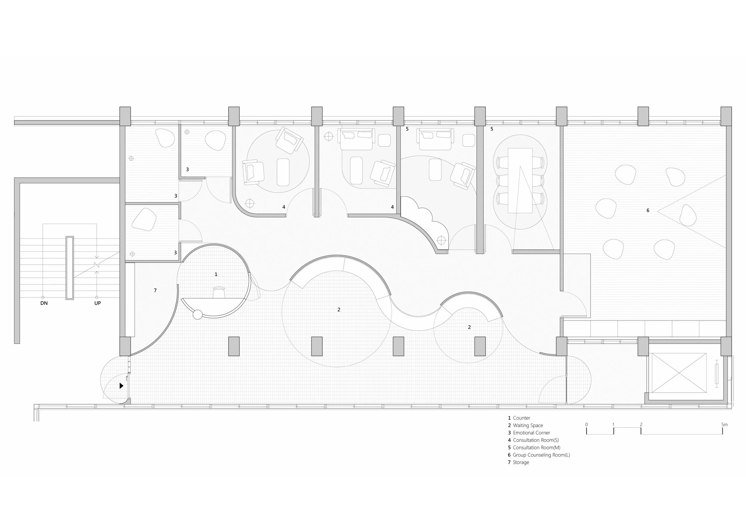
基地位於新北市東南科技大學自強樓三樓,本案旨在將傳統封閉的諮商室轉化為一個學生在日常即可自然使用的心靈休憩空間,使心理支持成為校園生活的一部分,而非特定時刻才啟動的行為。設計上打開原有阻隔南北向的牆面,引入南向光線與自然通風,並以弧線語彙柔化既有僵直的空間界面,創造更具停留與交流可能的環境。透過走廊、半私密中介區至諮商室的層次配置,形塑漸進式的空間轉換,使學生能依自身需求選擇參與的深度,在獲得情緒緩衝的同時降低標籤化壓力。圈圈話的核心在於將選擇權交還給使用者,讓心理支持以開放、可親近且生活化的方式存在於校園之中。
Located on the third floor of Ziqiang Building at Tungnan University in New Taipei City, the project reinterprets the conventional enclosed counseling room as an everyday emotional refuge accessible to students at any time, integrating psychological support into daily campus life rather than confining it to specific appointments. The design removes existing north–south partitions to introduce southern daylight and natural ventilation, while curved forms soften the previously rigid spatial boundaries to create a more welcoming and inhabitable environment. A spatial gradient—from corridor to semi-private intermediate zone to counseling room—establishes a progressive transition, allowing students to determine their level of engagement according to personal needs, providing emotional buffering while reducing stigma. At its core, the O talk returns agency to its users, positioning psychological support as an open, approachable, and normalized presence within the campus.
基地位置|新北市深坑區
計劃名稱|114年「學美.耕心—大專校院輔導諮商空間改造計畫」
主辦單位|台灣設計研究院
使用單位|東南科技大學諮商輔導中心
專案用途|諮商輔導空間
專案類型|統包工程
空間尺度|218.5平方公尺66坪
設計發展|林子文、張學智、莊茗予、張元杰、朱恩欣
施工單位|寶強室內裝修有限公司
專案階段|工程進行中

