療心室
基地為在新北市東南科技大學自強樓三樓,我們希望提供一個學生日常就能使用的心靈休憩空間,而不是特定時刻才能進入使用的諮商室。
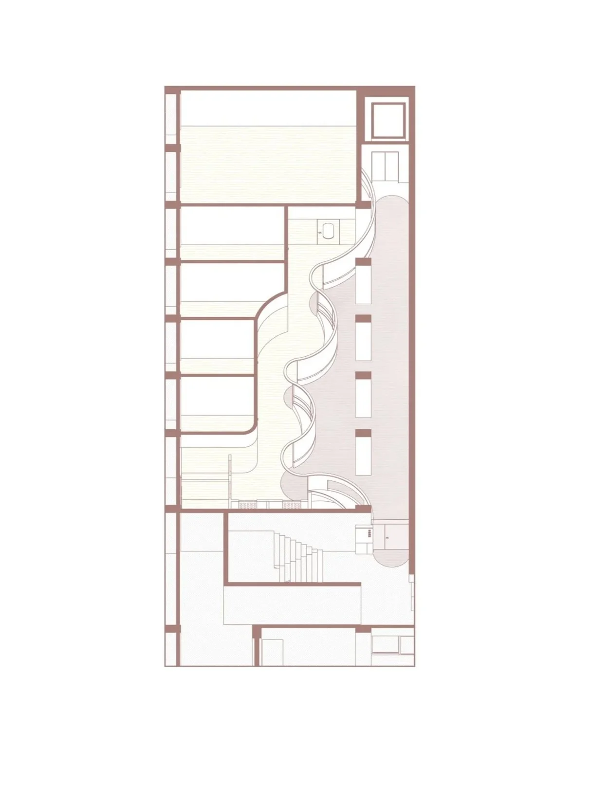
首先我們在物理環境上打開原本阻隔南北香的牆面,引入南向的陽光和涼風,利用弧線軟化原本僵硬筆直的牆面,並且增加了學生停留的空間。
隨著學生使用的需要,他可以進入為在走廊和諮商室之間的中介空間,在那裡學生可以進入半私密的情緒支援角落,或是等候準備進入諮商空間,當需要更深層的對話與陪伴則可以進入諮商空間與老師對話。
透過將空間層次化,我們一方面試圖提供諮商者一個緩衝和休息的空間來消化諮商這個行為帶來的情緒起伏,另一方面也希望將諮商生活化,讓一般學生在日常也能夠使用。
透過「療心室」的空間改造,我們試圖讓這裡的學生擁有選擇諮商層度的主動權,而非被動的被貼上需要諮商的標籤。
基地位置|新北市深坑區
計劃名稱|114年「學美.耕心—大專校院輔導諮商空間改造計畫」
主辦單位|台灣設計研究院
使用單位|東南科技大學諮商輔導中心
專案用途|諮商中心
專案類型|統包工程
專案階段|競圖決選第一名
代表團隊|林子文建築師事務所
設計發展|林子文、張學智、張元杰、朱恩欣
施工單位|寶強室內裝修有限公司

